0
0
0
0
0
0
0
0
0
0
0
0
PROJECTS

2342 W Adams St

Explore our homes within the comfort of yours. See the virtual 3D walkthrough or book an online tour with our realtor Svitlana Creadon.

0
0
0

About this project

/ Pre-Sale. For investors
$11,925,000
/ Contact
Svitlana Creadon
3D Apartment
31
units
3
beds
2
baths
19
parking spots
29
private balconies
23
bike storage spaces
/

This intelligently designed 31- residential unit building has 2 commercial spaces, 19 heated garage parking spots, 23 bike storage spaces, 29 private balconies, 2 huge private rooftop decks above the garage, and a massive rooftop top deck on the 5th floor with breathtaking panoramic city views.


Mostly residential and collegiate, the Near West Side is home to Maxwell Street, the birthplace of Chicago Blues and the Polish sausage sandwich.

Property overview

Don't let your investors miss out on this rare opportunity to own an expertly engineered 5-story masonry, concrete and steel building within a few blocks from the United Center and Medical District.

5 minute drive to Western Ave Metra Stop

6 minute walk to Western Blue Line

/

This intelligently designed 31- residential unit building has 2 commercial spaces, 19 heated garage parking spots, 23 bike storage spaces, 29 private balconies, 2 huge private rooftop decks above the garage, and a massive rooftop top deck on the 5th floor with breathtaking panoramic city views.


Mostly residential and collegiate, the Near West Side is home to Maxwell Street, the birthplace of Chicago Blues and the Polish sausage sandwich.

Construction details

The building is made from Norman brick and Utility brick.
Exterior Building Type: Brick
Construction: Brick, Concrete, Steel Siding
Fire Protection: Other, Carbon Monoxide Detector(s)

Roof Structure: Flat, Prestressed Concrete, Steel Joists
Foundation Details: Concrete Perimeter

Specification:
Foundation:
Concrete
Exterior:
Brick
Roof:
Prestressed Concrete
/
Specification:
Foundation:
Concrete
Exterior:
Brick
Roof:
Prestressed Concrete
/

Neighbourhood info

Don't let your investors miss out on this rare opportunity to own an expertly engineered 5-story masonry, concrete and steel building within a few blocks from the United Center and Medical District.
Michael Jordan made his name at the United Center, where the Bulls and Blackhawks play. Italian restaurants cluster on Taylor Street in Little Italy.

Short walk to blue line, Pete's grocery and West Loop amenities. Nearby is a long-running Sunday market and Hull House museum, a former immigrant settlement founded by reformer Jane Addams.

0
0

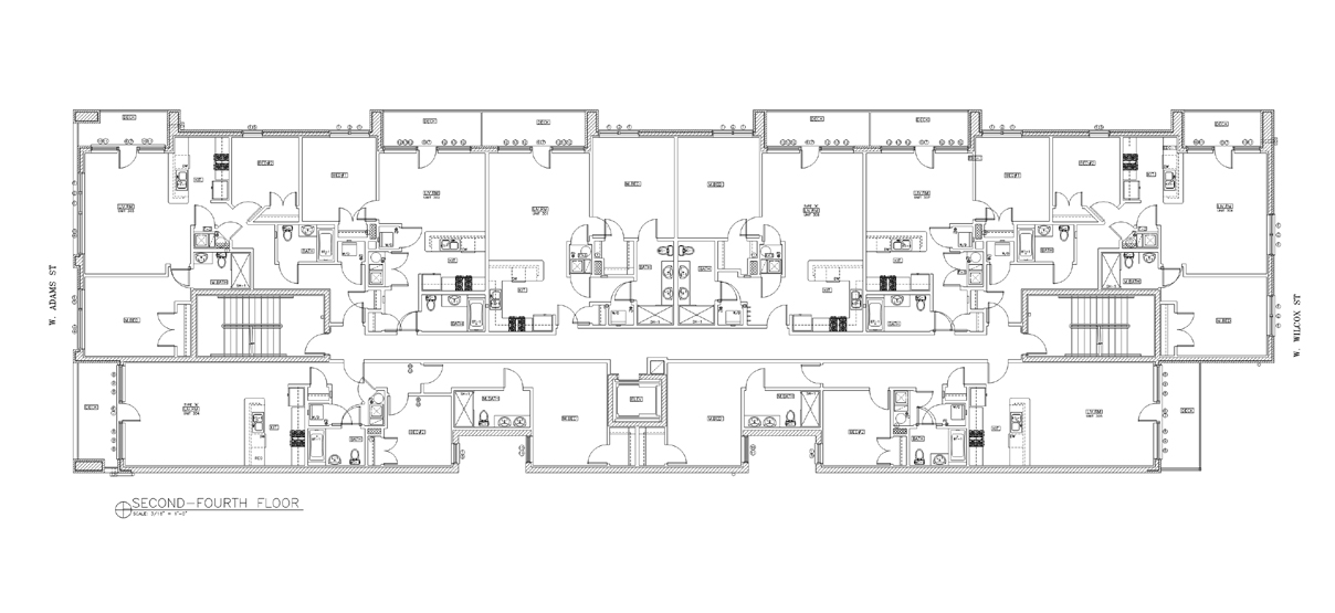
Floor layouts

Second - fourth floor
Fifth floor
View 3D tour

Interior property features:

  • Heated floors
  • Gas fireplace

Exterior property features:

  • City views
  • Balcony, sun deck
  • On-site garage parking

Client testimonials

More testimonials

What to Read Now


Zip Code 60612 Neighborhood Information. 2342 W Adams St.


The stylish five-story building is located at 2342 W Adams St, Chicago, IL 60612. Nearby lies W Wilcox St, S Oakley Blvd, and S Western Ave. This is a quiet area with developed infrastructure.


There are several green parks within a 5-10 minute walk, suitable for sports and walking. For example, Park 489 and Park 574. Between them is the Phoenix Military Academy at 145 S Campbell Ave.


There are many educational institutions of different levels and directions in the area:


  • Robert Nathaniel Dett Elementary School at 2131 W Monroe St
  • Richard T. Crane Medical Prep High School at 2245 W Jackson Blvd
  • Chicago Bulls College Prep at 2040 W Adams St
  • Malcolm X College at 1900 W Jackson Blvd
  • Ride Chicago Riding Site at 118 S Damen Ave

As for shopping, you don't have to go far. Purchase groceries at Pete's Fresh Market #10 – Madison & Western and buy medicines at Walgreens. There are furniture, gift, and cosmetics stores, a clothing market, several banks, beauty salons, and a post office within walking distance.


Grab a bite at Wendy's Fast Food Restaurant 410 feet away, Moon's Sandwich Shop (16 S Western Ave), Golden Dragon Chinese Restaurant (2459 W Madison St), and King Wok Asian Restaurant (2323 W Madison St).


Medical facilities include the University of Illinois Hospital, John H. Stroger, Jr. Hospital of Cook County, and Rush University Children's.


Fortress Home has extensive experience in general contracting in the Chicago area. What sets us apart from other building contractors is that we always look at infrastructure when choosing a location for new multi-family homes.

Need more details?

Get our consultation

Get consultation